Bon Delire

The project brief was to create a lively and vibrant experience reminiscent of the Parisian bistros of the owner’s childhood. 

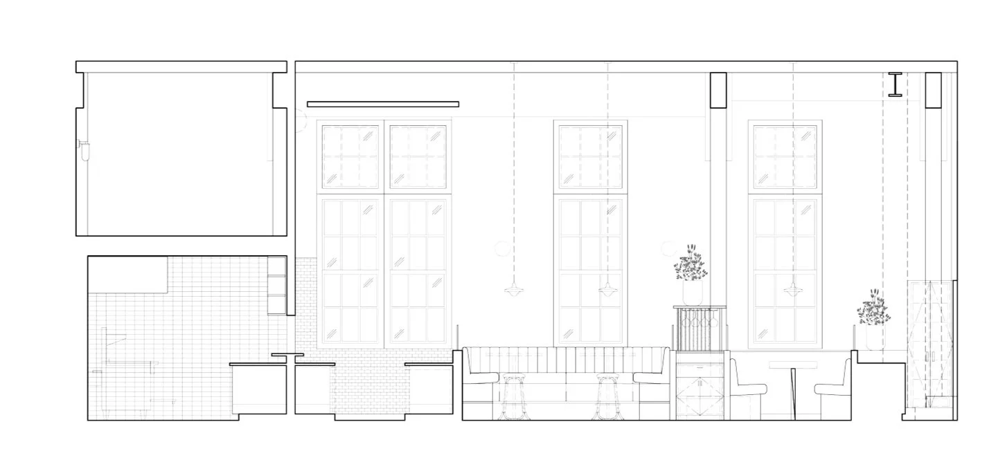
Our vision was to create a space that captures the essence of a Parisian bistro without being literal or cliché; to create a rich tapestry for the senses and a euphoric delirium of the spirit. We endeavored to create a visual balance between the existing industrial context and a refined and delicate Parisian overlay.  The vintage pendant lights were sourced from Paris from the same historic epoch as the port building.  We wanted to create a space bubbling with energy and conversation, the sound of French oldies spun by a DJ, the aroma and flavors of French cocktails, wine and tapas, the visuals of sculpted wood, warm lighting, and brilliant colors.   

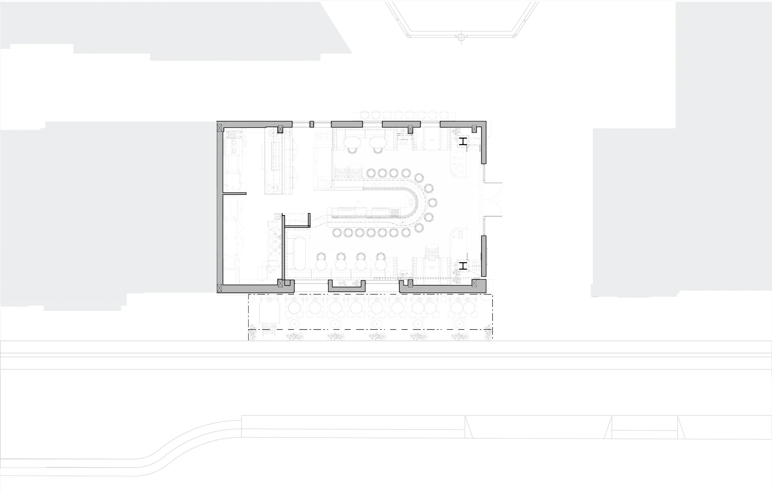
The bar was envisioned as a kind of unified object of grace and functionality, harmonizing a rich material palette of wood, zinc steel, and ceramics.  The narrow horseshoe footprint was retained as a cost-saving measure. We wanted to bar to convey a sense of solidity and functionality while also animating the spirit through its detailing and softness of form.  The cast zinc top, iconically Parisian, was designed like an intricate topography defined by its curving edges and rounded form.  The solid oak wood bar panels were designed to heighten and honor the experience of sitting at the bar.  The deep, smooth recesses, softly lit, define and enhance the act of sitting, encouraging a tactile experience. The overhead shelving, emerging from the zinc top, supports the broad selection of spirits, wine, and stemware.  Its curving organic profile facilitates bartender accessibility and the thin metal scrim allows for the visual texture of the softly uplit bottles.  The teardrop shape of the bespoke ceramic planters float within the upper steel shelving, complimenting the blackened steel with their earth tones and rough texture.


Process

TEAM


Studio Terpeluk

Architect

Hom Pisano Engineering, Inc

Structural Engineer

MHC Engineers, Inc

MEP Engineers

Northern Sun

General Contractor

Cynthia Randolph: A Little Studio

Custom Hanging Ceramic Planters

Chambers Art and Design

Architectural Metals Fabricator

Design West Parntership

Food Service Consult

Model No.

Millwork and Wooden Bar Panel Fabrication

Brendan Mainini

Photo Credits